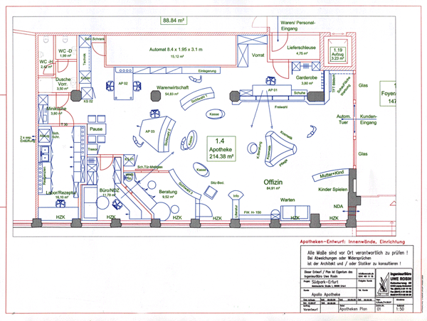
VORENTWURF - die Idee aufs Papier

Im Vorentwurf wird die Idee zur Aufgabenstellung mittels
"Rohzeichnung" zu Papier gebracht.
Mit diesem Vorentwurf werden wir in einem ersten
Planungsgespräch den Lösungsansatz vertiefen
und gemeinsam bewerten.

Auf Ihren Wunsch erstellen wir eine einfache und
unverbindliche Kostenschätzung.

In Vorgesprächen haben Sie die Möglichkeit
unsere Planungskompetenz zu prüfen und
Ihre wichtigen Fragen mit uns zu besprechen.

Ergebnis dieser Gespräche sollte dann die
Entscheidung über den weiterführenden Ablauf sein.

Plan vergrößern